https://api.minto-hiroshima.jp/public/vacant-houses/cmiifu31h0dqrtioz50doyjre

町中にある庭付き・カーポート付きの家

物件No.1-33
売買
820万円
所在地
世羅町大字西上原
マップを見る
付帯物件
なし
物件の特徴
駐車場付き庭付きペットの飼育山が近い街が近いリフォーム・リノベーション可能古民家
×
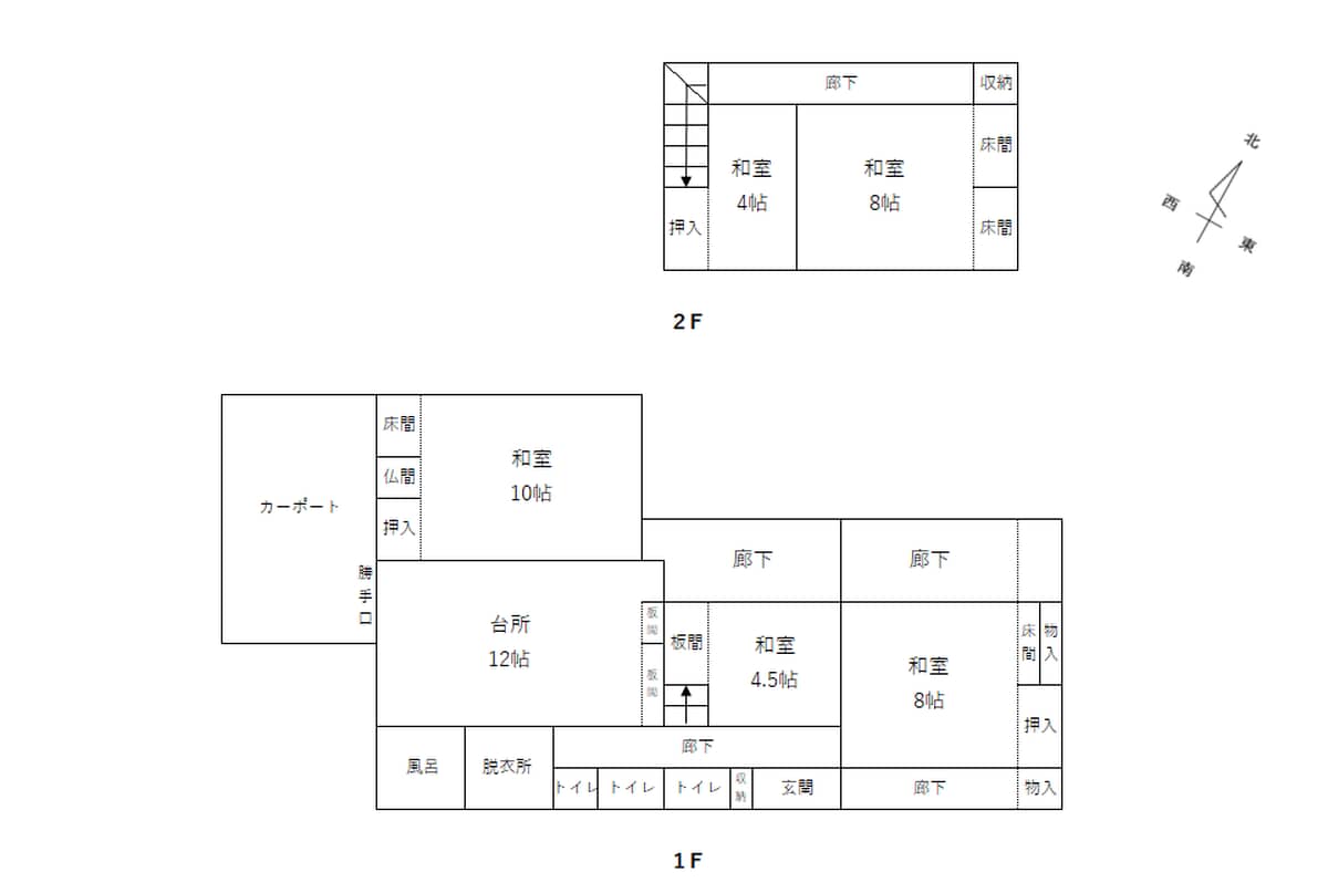
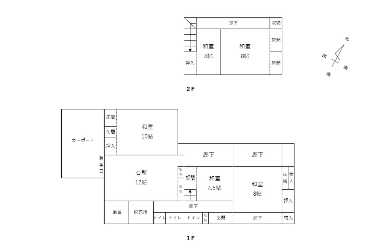
間取り
5LDK
構造規模
木造瓦葺 2階建
敷地面積
462.72 ㎡
延床面積
135.89 ㎡
築年月
-
水道
公営
ガス
プロパンガス
トイレ
下水道
建ぺい率 / 容積率
-
接道状況
-
駐車場
有り
特記事項
交通
世羅町中心部まで約0.1㎞
(車で約1分)
学区
甲山小学校
甲山中学校

ポイント

町の中心部。役場、バス停も近く、庭付き・カーポート付き。

備考

※物件見学、及び所在地等の提供には利用登録が必要です。<詳細情報>より市町ページをご確認ください。

注意書き

  • 随時、最新情報に更新しておりますが、不動産の性質上、既に成約済みの場合がありますので、ご了承ください。
  • ご希望の物件が有った場合等は、「問合せ先」に記載の市町窓口にお問合せください。なお、建物・土地の売主が宅建業者以外の場合には、宅地建物取引業法等で規定された報酬が発生する場合があります。
  • このホームページは空き家の情報を発信していくものです。県が不動産の契約・交渉などの仲介行為を行うことはありません。
町中にある庭付き・カーポート付きの家
売買
820万円

町中にある庭付き・カーポート付きの家

世羅町大字西上原 5LDK 敷地:462.72m² 延床:135.89m² 木造瓦葺 2階建 築年月 -
町中にある庭付き・カーポート付きの家

町中にある庭付き・カーポート付きの家

売買
820万円
世羅町大字西上原 5LDK 敷地:462.72m² 延床135.89m² 木造瓦葺 2階建 築年月 -

世羅町の補助金

すべて

空き家ポテンシャル

ひろしまで理想の空き家に出会った方々の武勇伝。この物件でも活かせそうなケースがあるのでご紹介。

この物件はこう活かせそう

SUPPORT

  • 空き家で実現したいことがある
  • ご自身の空き家について不安がある
  • 空き家について相談したい

サポート