https://api.minto-hiroshima.jp/public/vacant-houses/cmi491pr605sitiozq0ue9guo

安芸高田市 623

物件No.623
売買
500万円
賃貸
5万円
所在地
安芸高田市向原町戸島
マップを見る
付帯物件
物件の特徴
駐車場付き庭付き山が近い
×
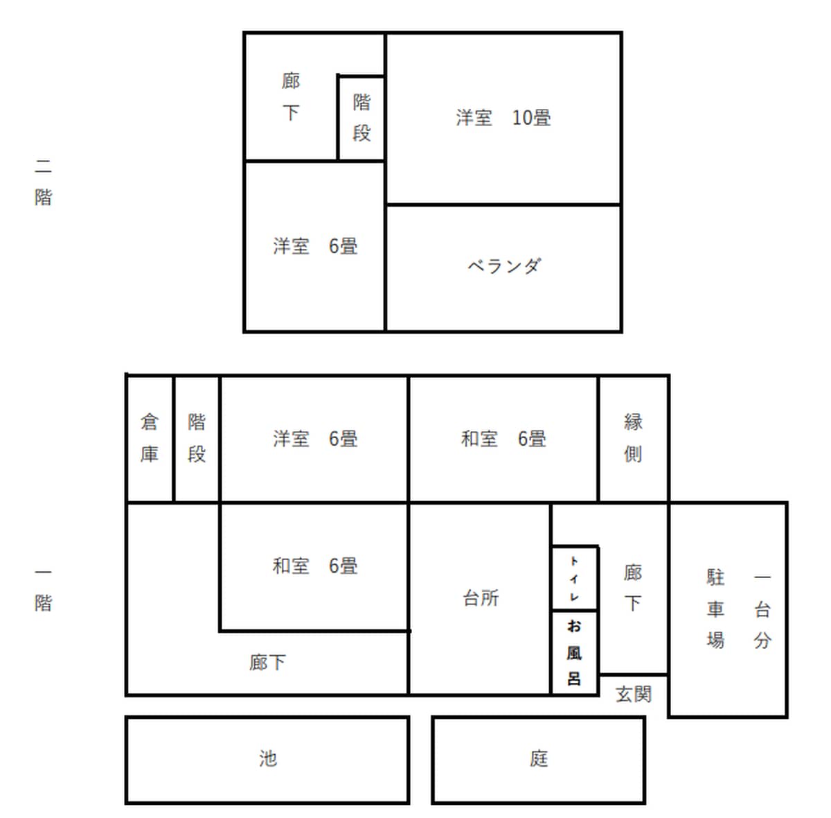
間取り
5DK
構造規模
木造住宅
敷地面積
208.56 ㎡
延床面積
87.55 ㎡
築年月
1972年
水道
公営
ガス
プロパンガス
トイレ
下水道
建ぺい率 / 容積率
-
接道状況
-
駐車場
-
特記事項
敷金 5万円、礼金 5万円
交通
広島市まで車で約1時間
学区
小学校:向原小学校、中学校:向原中学校

備考

修理不要(必要な場合は買主・借主負担)

注意書き

  • 随時、最新情報に更新しておりますが、不動産の性質上、既に成約済みの場合がありますので、ご了承ください。
  • ご希望の物件が有った場合等は、「問合せ先」に記載の市町窓口にお問合せください。なお、建物・土地の売主が宅建業者以外の場合には、宅地建物取引業法等で規定された報酬が発生する場合があります。
  • このホームページは空き家の情報を発信していくものです。県が不動産の契約・交渉などの仲介行為を行うことはありません。
売買
500万円
賃貸
5万円

安芸高田市 623

安芸高田市向原町戸島 5DK 敷地:208.56m² 延床:87.55m² 木造住宅 築年月 1972年

安芸高田市 623

売買
500万円
賃貸
5万円
安芸高田市向原町戸島 5DK 敷地:208.56m² 延床87.55m² 木造住宅 築年月 1972年

安芸高田市の補助金

すべて

空き家ポテンシャル

ひろしまで理想の空き家に出会った方々の武勇伝。この物件でも活かせそうなケースがあるのでご紹介。

この物件はこう活かせそう

SUPPORT

  • 空き家で実現したいことがある
  • ご自身の空き家について不安がある
  • 空き家について相談したい

サポート