https://api.minto-hiroshima.jp/public/vacant-houses/cmo8ad8ol0rshx3cj5v7du2rq

竹原市 220 全居室6畳以上で、家中どこでも快適に過ごせます。

物件No.220
売買
500万円
所在地
竹原市東野町
マップを見る
付帯物件
物件の特徴
駐車場付き川が近い
×
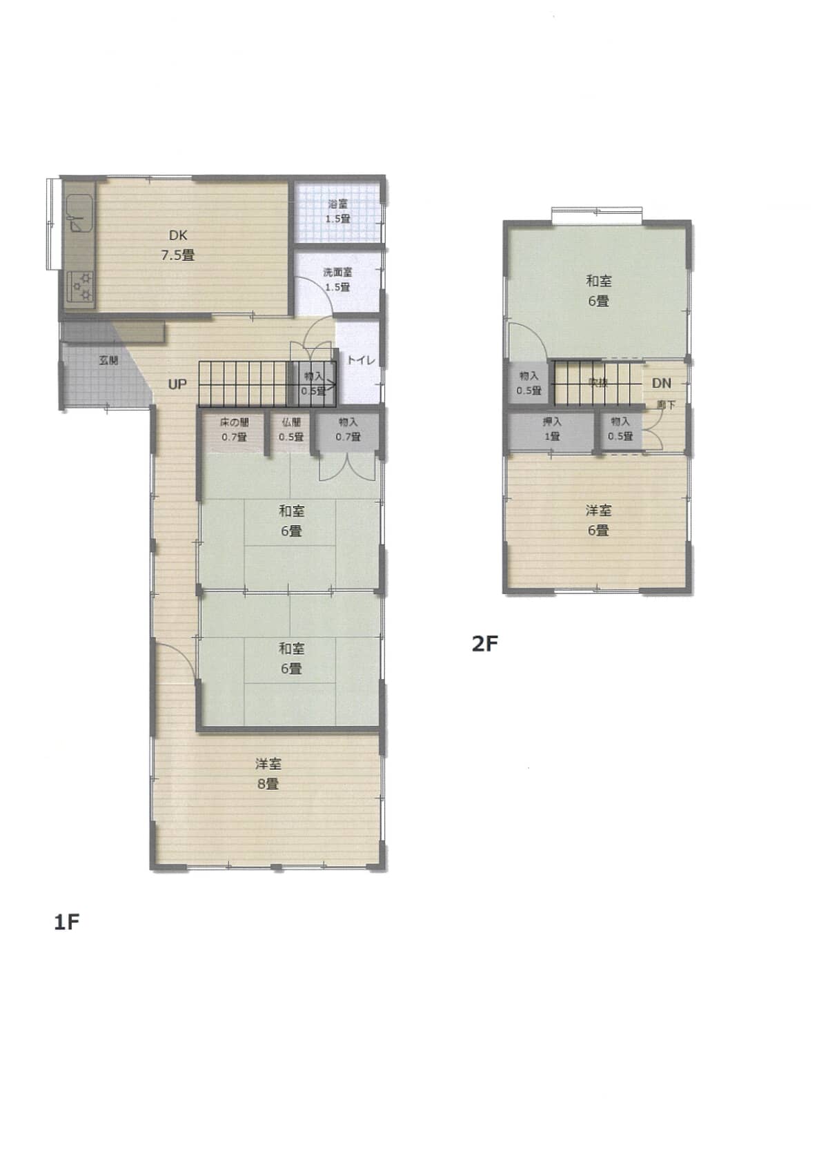
間取り
5DK
構造規模
木造
敷地面積
182.37 ㎡
延床面積
57.96 ㎡
築年月
1985年12月
水道
-
ガス
-
トイレ
-
建ぺい率 / 容積率
60/200
接道状況
一方
駐車場
2台
特記事項
-
交通
バス 大福地 停歩3分
学区
-

備考

面前の一部が個人所有
家財は要相談
仲介:平原建設(株)

注意書き

  • 随時、最新情報に更新しておりますが、不動産の性質上、既に成約済みの場合がありますので、ご了承ください。
  • ご希望の物件が有った場合等は、「問合せ先」に記載の市町窓口にお問合せください。なお、建物・土地の売主が宅建業者以外の場合には、宅地建物取引業法等で規定された報酬が発生する場合があります。
  • このホームページは空き家の情報を発信していくものです。県が不動産の契約・交渉などの仲介行為を行うことはありません。
売買
500万円

竹原市 220 全居室6畳以上で、家中どこでも快適に過ごせます。

竹原市東野町 5DK 敷地:182.37m² 延床:57.96m² 木造 築年月 1985年12月

竹原市 220 全居室6畳以上で、家中どこでも快適に過ごせます。

売買
500万円
竹原市東野町 5DK 敷地:182.37m² 延床57.96m² 木造 築年月 1985年12月

竹原市の補助金

すべて

空き家ポテンシャル

ひろしまで理想の空き家に出会った方々の武勇伝。この物件でも活かせそうなケースがあるのでご紹介。

この物件はこう活かせそう

SUPPORT

  • 空き家で実現したいことがある
  • ご自身の空き家について不安がある
  • 空き家について相談したい

サポート