https://api.minto-hiroshima.jp/public/vacant-houses/cmfq8njsj05akpdgxpgbl3nl6

東広島市河内町B25-021

物件No.B25-021
売買
750万円
賃貸
8万円
所在地
東広島市河内町下河内
マップを見る
付帯物件
倉庫
物件の特徴
駐車場付きリフォーム・リノベーション可能
×
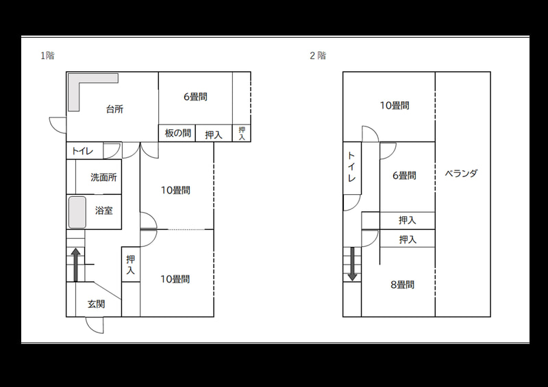
間取り
6DK
構造規模
軽量鉄骨造亜鉛メッキ鋼板葺二階建
敷地面積
369.22 ㎡
延床面積
170.11 ㎡
築年月
1988年11月
水道
公営
ガス
電気
トイレ
下水道
建ぺい率 / 容積率
60/200
接道状況
接道状態:一方  接道方向:北 幅員:5.0m公道 接道:25.0m
駐車場
有り
特記事項
非線引区域
用途地域(第一種中高層住居専用地域)
交通
JR河内駅まで1km
学区
河内小学校

備考

オール電化住宅+ソーラーパネル

注意書き

  • 随時、最新情報に更新しておりますが、不動産の性質上、既に成約済みの場合がありますので、ご了承ください。
  • ご希望の物件が有った場合等は、「問合せ先」に記載の市町窓口にお問合せください。なお、建物・土地の売主が宅建業者以外の場合には、宅地建物取引業法等で規定された報酬が発生する場合があります。
  • このホームページは空き家の情報を発信していくものです。県が不動産の契約・交渉などの仲介行為を行うことはありません。
売買
750万円
賃貸
8万円

東広島市河内町B25-021

東広島市河内町下河内 6DK 敷地:369.22m² 延床:170.11m² 軽量鉄骨造亜鉛メッキ鋼板葺二階建 築年月 1988年11月

東広島市河内町B25-021

売買
750万円
賃貸
8万円
東広島市河内町下河内 6DK 敷地:369.22m² 延床170.11m² 軽量鉄骨造亜鉛メッキ鋼板葺二階建 築年月 1988年11月

東広島市の補助金

すべて

空き家ポテンシャル

ひろしまで理想の空き家に出会った方々の武勇伝。この物件でも活かせそうなケースがあるのでご紹介。

この物件はこう活かせそう

SUPPORT

  • 空き家で実現したいことがある
  • ご自身の空き家について不安がある
  • 空き家について相談したい

サポート