オール電化住宅で、令和6年にキッチン・浴室・洗面所リフォーム実施物件! ドッグランとして使用できる庭(人工芝)付き!
- 所在地
- 三原市久井町下津 マップを見る
- 付帯物件
- 物件の特徴
- 駐車場付き庭付きペットの飼育山が近いVR内覧可能
 
						
					 
						
					 
						
					 
						
					 
						
					 
						
					 
						
					 
						
					 
                  
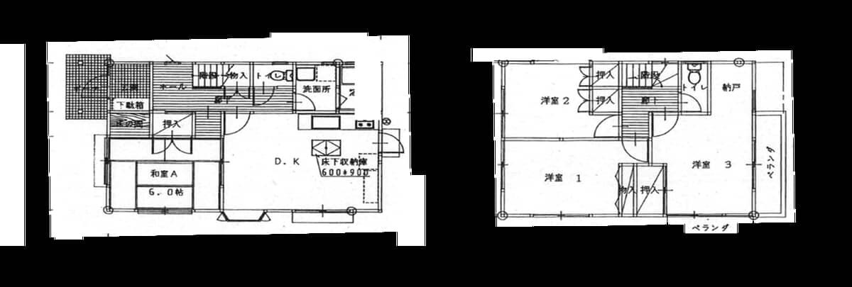
                - 間取り
- 4DK
- 構造規模
- 木造2階建て
- 敷地面積
- 149 ㎡
- 延床面積
- 89.43 ㎡
- 築年月
- 1996年
- 水道
- -
- ガス
- -
- トイレ
- 浄化槽
- 建ぺい率 / 容積率
- -
- 接道状況
- -
- 駐車場
- 有り(2台)
- 特記事項
- オール電化住宅
- 交通
- 三原駅まで18.7km
- 学区
- 三原市立久井小学校
 三原市立久井中学校
備考
-
VR内覧
注意書き
- 随時、最新情報に更新しておりますが、不動産の性質上、既に成約済みの場合がありますので、ご了承ください。
- ご希望の物件が有った場合等は、「問合せ先」に記載の市町窓口にお問合せください。なお、建物・土地の売主が宅建業者以外の場合には、宅地建物取引業法等で規定された報酬が発生する場合があります。
- このホームページは空き家の情報を発信していくものです。県が不動産の契約・交渉などの仲介行為を行うことはありません。
詳細情報
- 売買
- 800万円
オール電化住宅で、令和6年にキッチン・浴室・洗面所リフォーム実施物件! ドッグランとして使用できる庭(人工芝)付き!
この物件をお問い合わせ
オール電化住宅で、令和6年にキッチン・浴室・洗面所リフォーム実施物件! ドッグランとして使用できる庭(人工芝)付き!
- 売買
- 800万円
この物件をお問い合わせ
 
          
    
       
            