駐車場3台、庭付きの物件です
- 所在地
- 三原市沼田東町末広 マップを見る
- 付帯物件
- 物件の特徴
- 駐車場付き庭付きペットの飼育VR内覧可能
 
						
					 
						
					 
						
					 
						
					 
						
					 
						
					 
						
					 
						
					 
						
					 
                  
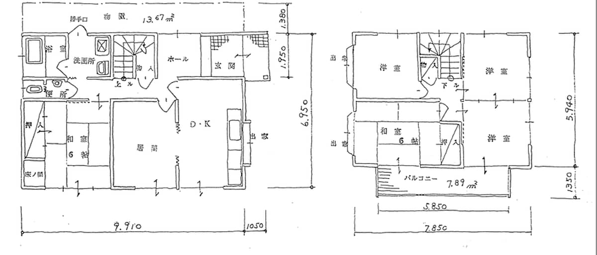
                - 間取り
- 5LDK
- 構造規模
- 木造2階建て
- 敷地面積
- 221.34 ㎡
- 延床面積
- 115.49 ㎡
- 築年月
- 1981年
- 水道
- 公営
- ガス
- -
- トイレ
- 下水道
- 建ぺい率 / 容積率
- -
- 接道状況
- -
- 駐車場
- 有り(3台)
- 特記事項
- ガス:集中プロパン
- 交通
- 本郷駅まで6.1km
- 学区
- 三原市立沼田東小学校
 三原市立第五中学校
備考
市街化調整区域(契約前に三原市役所 建築指導課へ要相談)
VR内覧
注意書き
- 随時、最新情報に更新しておりますが、不動産の性質上、既に成約済みの場合がありますので、ご了承ください。
- ご希望の物件が有った場合等は、「問合せ先」に記載の市町窓口にお問合せください。なお、建物・土地の売主が宅建業者以外の場合には、宅地建物取引業法等で規定された報酬が発生する場合があります。
- このホームページは空き家の情報を発信していくものです。県が不動産の契約・交渉などの仲介行為を行うことはありません。
詳細情報
- 売買
- 480万円
駐車場3台、庭付きの物件です
この物件をお問い合わせ
駐車場3台、庭付きの物件です
- 売買
- 480万円
この物件をお問い合わせ
 
          
    
       
            