農地付き離島物件です!
- 所在地
- 三原市鷺浦町須波 マップを見る
- 付帯物件
- 農地
- 物件の特徴
- 駐車場付き庭付き平屋建て海が近い島農地付き
 
						
					 
						
					 
						
					 
						
					 
						
					 
						
					 
						
					 
						
					 
						
					 
                  
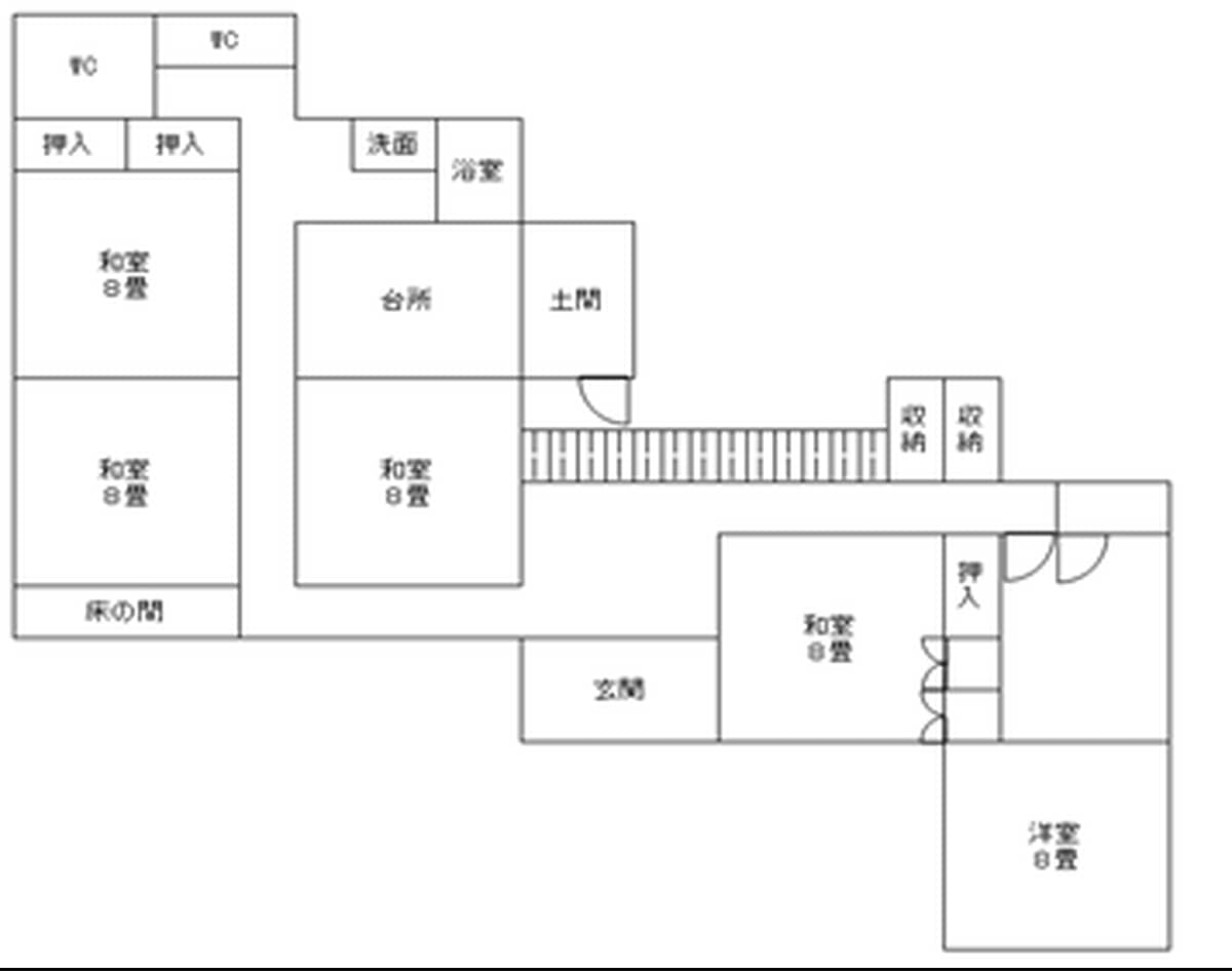
                - 間取り
- 6K
- 構造規模
- 木造平屋建て
- 敷地面積
- 721.66 ㎡
- 延床面積
- 182.37 ㎡
- 築年月
- 1977年
- 水道
- 公営
- ガス
- プロパンガス
- トイレ
- 浄化槽
- 建ぺい率 / 容積率
- -
- 接道状況
- -
- 駐車場
- 有り(2台)
- 特記事項
- -
- 交通
- 三原駅まで高速船で約30分
- 学区
- 三原市立鷺浦小学校
 三原市立第二中学校
備考
土砂災害警戒区域指定あり
注意書き
- 随時、最新情報に更新しておりますが、不動産の性質上、既に成約済みの場合がありますので、ご了承ください。
- ご希望の物件が有った場合等は、「問合せ先」に記載の市町窓口にお問合せください。なお、建物・土地の売主が宅建業者以外の場合には、宅地建物取引業法等で規定された報酬が発生する場合があります。
- このホームページは空き家の情報を発信していくものです。県が不動産の契約・交渉などの仲介行為を行うことはありません。
詳細情報
- 売買
- 950万円
農地付き離島物件です!
この物件をお問い合わせ
農地付き離島物件です!
- 売買
- 950万円
この物件をお問い合わせ
 
          
    
       
            