https://api.minto-hiroshima.jp/public/vacant-houses/cmk68zark0hhm56crojxgudrj

・自然に囲まれた環境、倉庫付き!庭で家庭菜園も可能! ・元食堂スペースの広い土間、広い台所スペース(土間)があります! ・小中学校が近く、通学に便利です!

物件No.391
売買
300万円
所在地
三原市大和町大具
マップを見る
付帯物件
納屋、土間
物件の特徴
駐車場付き庭付きペットの飼育山が近いVR内覧可能
×
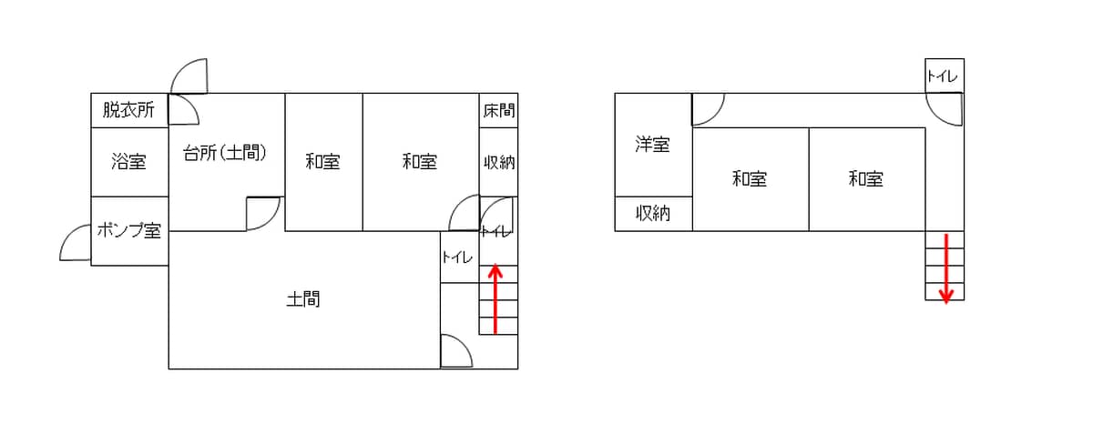
間取り
-
構造規模
木造2階建て
敷地面積
328.22 ㎡
延床面積
114.01 ㎡
築年月
1969年4月
水道
井戸
ガス
プロパンガス
トイレ
汲み取り
建ぺい率 / 容積率
-
接道状況
-
駐車場
有り(2台)
特記事項
-
交通
河内駅から11.8km
学区
三原市立大和小学校
三原市立大和中学校

備考

-

VR内覧

注意書き

  • 随時、最新情報に更新しておりますが、不動産の性質上、既に成約済みの場合がありますので、ご了承ください。
  • ご希望の物件が有った場合等は、「問合せ先」に記載の市町窓口にお問合せください。なお、建物・土地の売主が宅建業者以外の場合には、宅地建物取引業法等で規定された報酬が発生する場合があります。
  • このホームページは空き家の情報を発信していくものです。県が不動産の契約・交渉などの仲介行為を行うことはありません。
・自然に囲まれた環境、倉庫付き!庭で家庭菜園も可能!
・元食堂スペースの広い土間、広い台所スペース(土間)があります!
・小中学校が近く、通学に便利です!
売買
300万円

・自然に囲まれた環境、倉庫付き!庭で家庭菜園も可能! ・元食堂スペースの広い土間、広い台所スペース(土間)があります! ・小中学校が近く、通学に便利です!

三原市大和町大具 - 敷地:328.22m² 延床:114.01m² 木造2階建て 築年月 1969年4月
・自然に囲まれた環境、倉庫付き!庭で家庭菜園も可能!
・元食堂スペースの広い土間、広い台所スペース(土間)があります!
・小中学校が近く、通学に便利です!

・自然に囲まれた環境、倉庫付き!庭で家庭菜園も可能! ・元食堂スペースの広い土間、広い台所スペース(土間)があります! ・小中学校が近く、通学に便利です!

売買
300万円
三原市大和町大具 - 敷地:328.22m² 延床114.01m² 木造2階建て 築年月 1969年4月

三原市の補助金

すべて

空き家ポテンシャル

ひろしまで理想の空き家に出会った方々の武勇伝。この物件でも活かせそうなケースがあるのでご紹介。

この物件はこう活かせそう

SUPPORT

  • 空き家で実現したいことがある
  • ご自身の空き家について不安がある
  • 空き家について相談したい

サポート