https://api.minto-hiroshima.jp/public/vacant-houses/cmiifu30i0dqbtiozex0dpolu

部屋数が豊富な土間のある家

物件No.1-31
売買
350万円
所在地
世羅町大字小世良
マップを見る
付帯物件
離れ、宅地、畑、原野
物件の特徴
駐車場付きペットの飼育山が近いリフォーム・リノベーション可能古民家農地付き
×
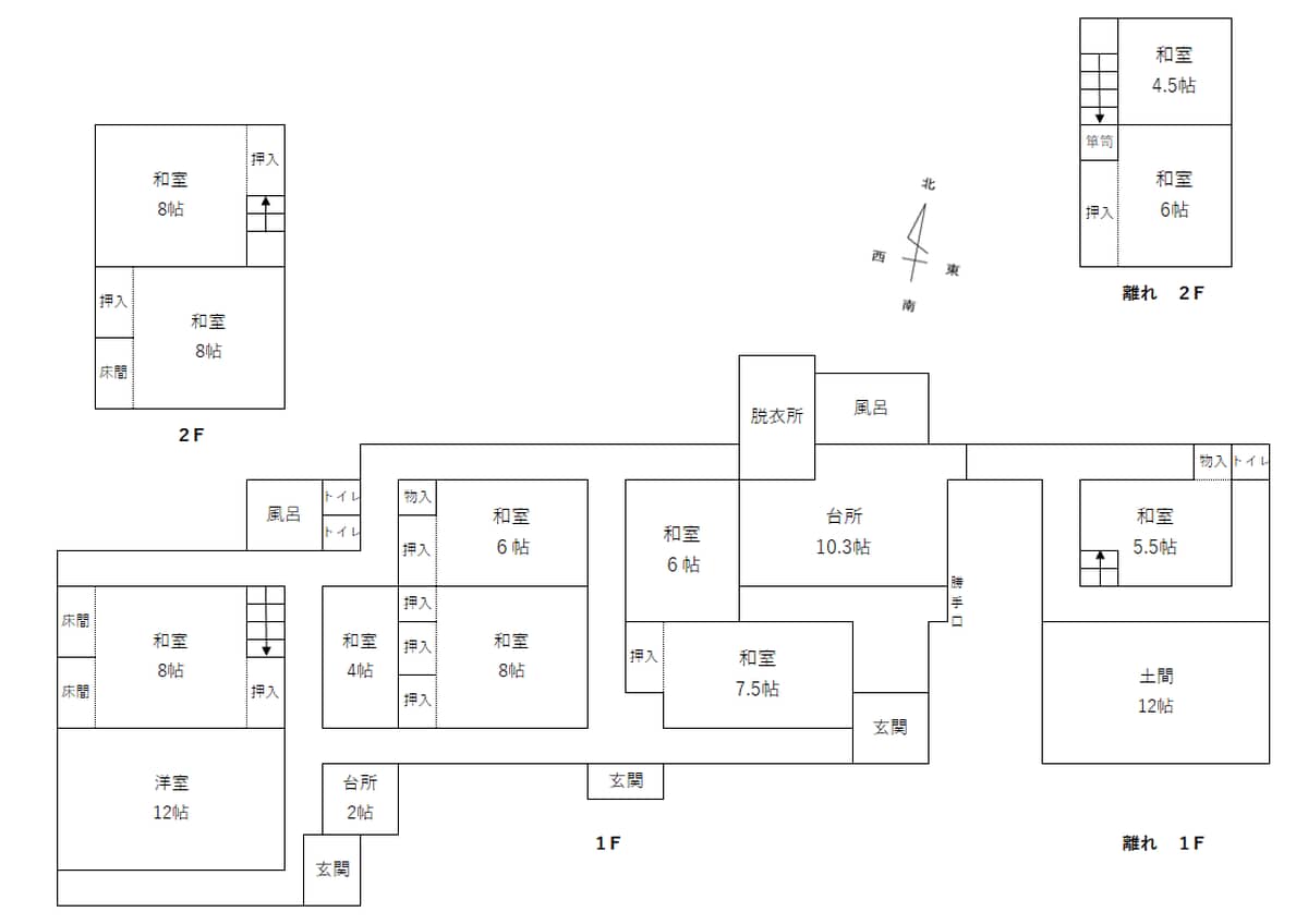
間取り
9LDK
構造規模
木造瓦葺 2階建
敷地面積
664.94 ㎡
延床面積
226.15 ㎡
築年月
1954年
水道
井戸
ガス
プロパンガス
トイレ
汲み取り
建ぺい率 / 容積率
-
接道状況
-
駐車場
有り
特記事項
農地等は各種手続きが必要
交通
世羅町中心部まで約2㎞
(車で約4分)
学区
甲山小学校
甲山中学校

ポイント

部屋数豊富。土間のある離れや家庭菜園のできる農地付き。

備考

※物件見学、及び所在地等の提供には利用登録が必要です。<詳細情報>より市町ページをご確認ください。

注意書き

  • 随時、最新情報に更新しておりますが、不動産の性質上、既に成約済みの場合がありますので、ご了承ください。
  • ご希望の物件が有った場合等は、「問合せ先」に記載の市町窓口にお問合せください。なお、建物・土地の売主が宅建業者以外の場合には、宅地建物取引業法等で規定された報酬が発生する場合があります。
  • このホームページは空き家の情報を発信していくものです。県が不動産の契約・交渉などの仲介行為を行うことはありません。
部屋数が豊富な土間のある家
売買
350万円

部屋数が豊富な土間のある家

世羅町大字小世良 9LDK 敷地:664.94m² 延床:226.15m² 木造瓦葺 2階建 築年月 1954年
部屋数が豊富な土間のある家

部屋数が豊富な土間のある家

売買
350万円
世羅町大字小世良 9LDK 敷地:664.94m² 延床226.15m² 木造瓦葺 2階建 築年月 1954年

世羅町の補助金

すべて

空き家ポテンシャル

ひろしまで理想の空き家に出会った方々の武勇伝。この物件でも活かせそうなケースがあるのでご紹介。

この物件はこう活かせそう

SUPPORT

  • 空き家で実現したいことがある
  • ご自身の空き家について不安がある
  • 空き家について相談したい

サポート