https://api.minto-hiroshima.jp/public/vacant-houses/cmmub3imj0nbms5w8j4bu56mg

田畑に囲まれた山間の家

物件No.6-12
売買
170万円
所在地
世羅町大字戸張
マップを見る
付帯物件
納屋1棟、蔵1棟、田、畑、原野、雑種地、山林他
物件の特徴
駐車場付き庭付き山が近い古民家農地付き
×
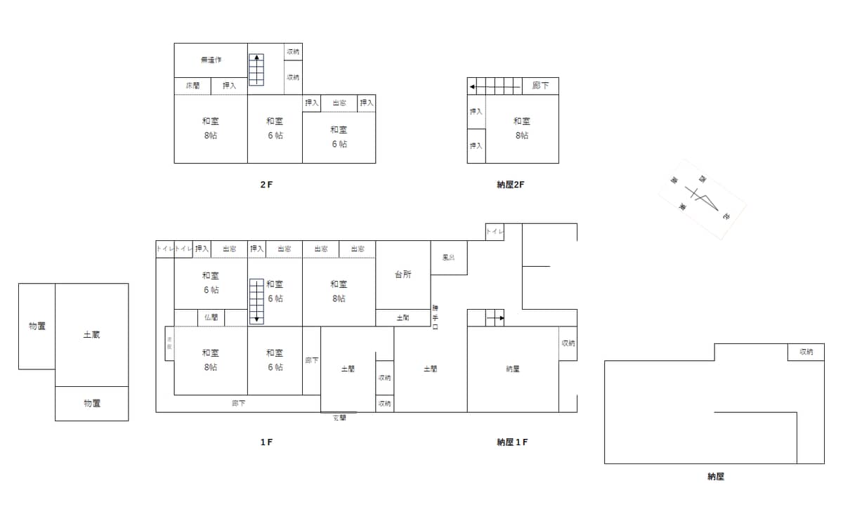
間取り
8DK
構造規模
木造瓦葺2階建
敷地面積
780.4 ㎡
延床面積
159.54 ㎡
築年月
1924年
水道
井戸
ガス
プロパンガス
トイレ
汲み取り
建ぺい率 / 容積率
-
接道状況
-
駐車場
-
特記事項
農地等は各種手続きが必要
交通
世羅ICまで約16㎞
(車で約16分)
学区
世羅小学校
世羅中学校

備考

※物件見学、及び所在地等の提供には利用登録が必要です。<詳細情報>より市町ページをご確認ください。

注意書き

  • 随時、最新情報に更新しておりますが、不動産の性質上、既に成約済みの場合がありますので、ご了承ください。
  • ご希望の物件が有った場合等は、「問合せ先」に記載の市町窓口にお問合せください。なお、建物・土地の売主が宅建業者以外の場合には、宅地建物取引業法等で規定された報酬が発生する場合があります。
  • このホームページは空き家の情報を発信していくものです。県が不動産の契約・交渉などの仲介行為を行うことはありません。
田畑に囲まれた山間の家
売買
170万円

田畑に囲まれた山間の家

世羅町大字戸張 8DK 敷地:780.4m² 延床:159.54m² 木造瓦葺2階建 築年月 1924年
田畑に囲まれた山間の家

田畑に囲まれた山間の家

売買
170万円
世羅町大字戸張 8DK 敷地:780.4m² 延床159.54m² 木造瓦葺2階建 築年月 1924年

世羅町の補助金

すべて

空き家ポテンシャル

ひろしまで理想の空き家に出会った方々の武勇伝。この物件でも活かせそうなケースがあるのでご紹介。

この物件はこう活かせそう

SUPPORT

  • 空き家で実現したいことがある
  • ご自身の空き家について不安がある
  • 空き家について相談したい

サポート